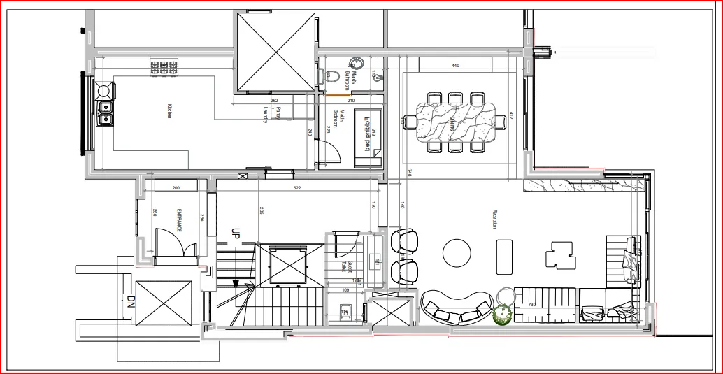
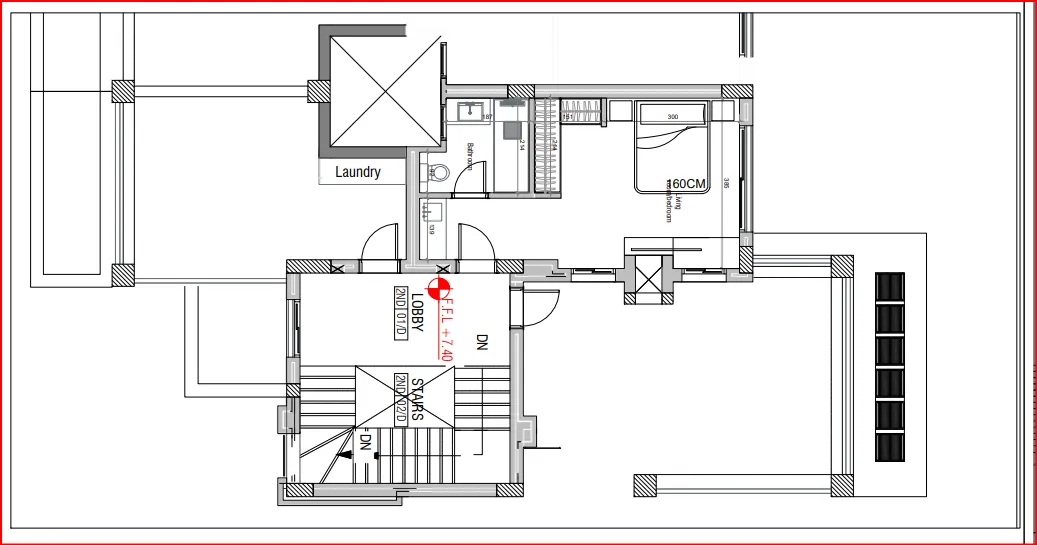
Townhouse
Reference No.
107821
Bedrooms
4
Bathrooms
5
Compound
New GizaSale Type
Developer Sale
Finishing
Not Finished
Details
Gallery
View on Map
Master Plan
Amenities

About Townhouse
A 4 bedroom Townhouse in New Giza by G Developments. The Townhouse with 5 bathrooms.






