A home is not just a roof over your head. It’s a place to call your own and to build memories. It’s a reflection of your style, your taste, and your personality. And, most importantly, it’s a place to feel safe, comfortable, and loved. All of these beautiful feelings will be felt in V Residences Compound. In this blog, we will tell you all about the V Residences Sodic master plan, properties, and prices.
V Residences Sodic Master Plan
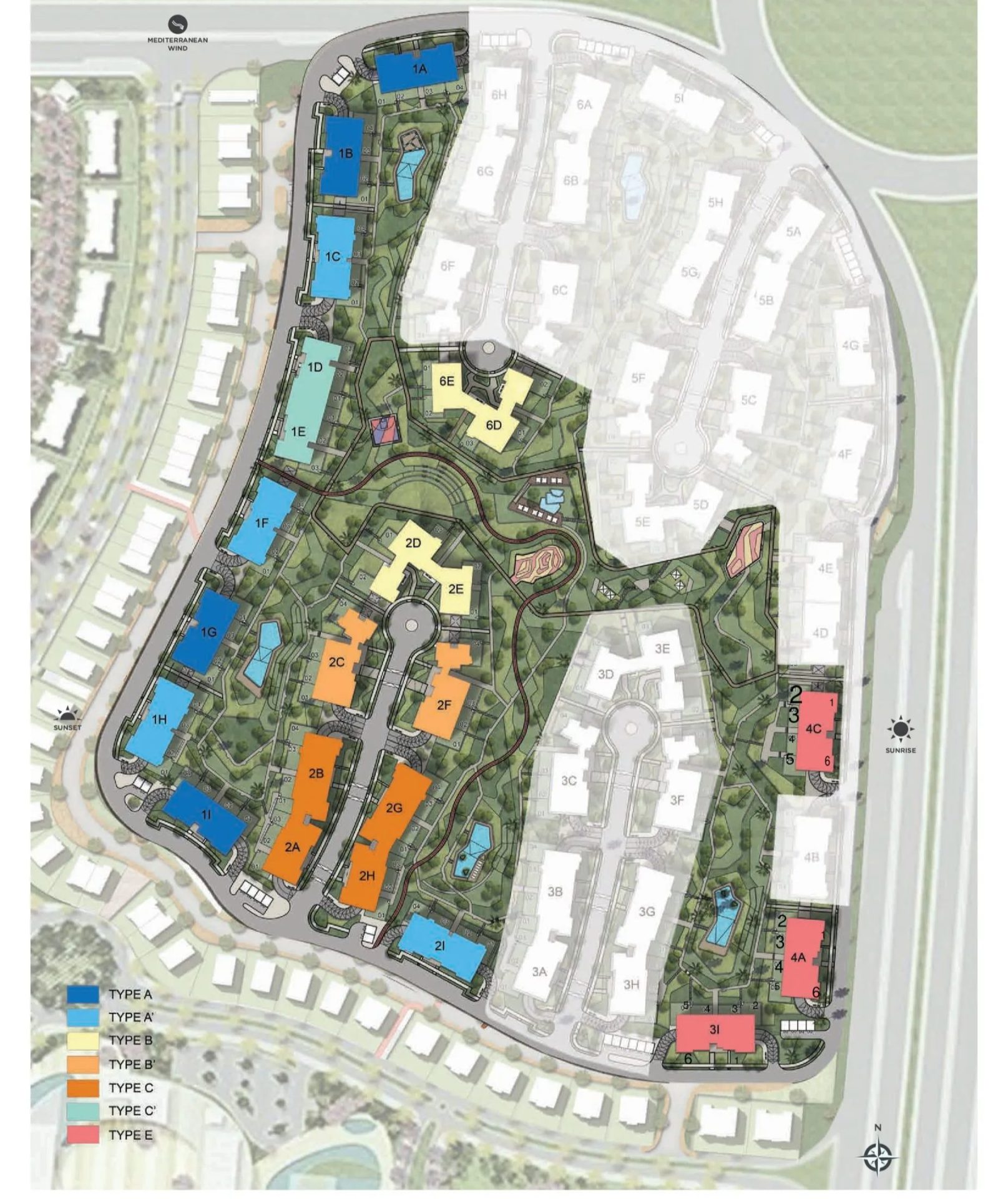
First of all, it should be noted that V Residences is one of the premium residential phases inside Villette Sodic Compound in New Cairo.
Now, let’s take a closer look at the V Residences Sodic master plan.

V Residences Sodic Master Plan
The photo of V Residences Sodic master plan shows a well-designed compound with a central green area and a variety of buildings surrounding it.
The overall layout is very efficient and makes good use of the space. The buildings are all well-built and have a uniform look, which creates a sense of order and harmony!
- As shown in the V Residences Sodic master plan, the central green area is a great place for residents to relax and enjoy the outdoors.
- Likewise, the crystal clear waters of the water bodies offer you a sense of the peace and quiet of the natural world.
- In V Residences Sodic master plan there is a wide trail for riding a bicycle, jogging, or even just walking between the landscapes.
Read More In V Residences | One-Time Investment For Lifetime Income
V Residences Amenities
The project’s amenities and services will offer residents a never-ending stream of entertainment, relaxation, and enjoyment.
- There is a team of highly trained and skilled Concierge services. They will help you with anything from arranging your meetings to booking your appointments.
- Additionally, there is a beautiful and stunning Central Park, which includes four central gardens that offer you a sense of peace and serenity.
- Keep in shape with various sports facilities such as gyms, football fields, basketball courts, and tennis courts. All of these you’ll find in the sports club of the compound.
- The compound also has 24-hour security, so residents can feel safe and secure at all times.
Don’t forget to check out the Villette Sodic Compound master plan!
V Residences Properties For Sale & Prices
V Residences Sodic features a wide selection of properties, including lavish apartments, duplexes, penthouses, studios, and serviced apartments. Their prices are as follows:
- Studios have a starting price of 10,300,000 EGP.
- Apartments start at 12,900,000 EGP.
- Penthouses have a starting price of 30,000,000 EGP.
- Serviced apartments start at 34,575,000 EGP.
- Duplexes start at 57,137,000 EGP.
Please note that the prices and spaces of the available units are constantly updated. For the latest update of the price list, please check out the V Residences compound listings.

Take Action Now!
Finally, V Residences Phase by Sodic has a brilliant master plan. It is an excellent option for those who are looking for a place that has it all.
All of these amenities allow the residents to indulge in their desired activities without having to leave the compound. Visit Nawy website and contact us to get your perfect unit.
Just text or call to get in touch with our team who will do the rest!









